QUEENSTOWN - Private Residence
In 2017, a French resident of Singapore and his Thai wife acquired a 2.2 ha piece of property on South Island of New Zealand, north of Queenstown. The property has stunning views of the crystal clear Lake Wakatipu, with a backdrop of the snow-capped glacial peak of Mount Alfred.
The owner wanted to see that the home would incorporate much of the quality standards of a luxury hotel. While he intended to use local NZ consultants, he asked Miller to join the team as Design Advisor to achieve the luxury hotel standard.
While respect for local materials and design traditions was important, the owner also wanted to have a modern emphasis on the indoor / outdoor lifestyle. A moniker of “Neutra comes to New Zealand rustic” became the guidance.
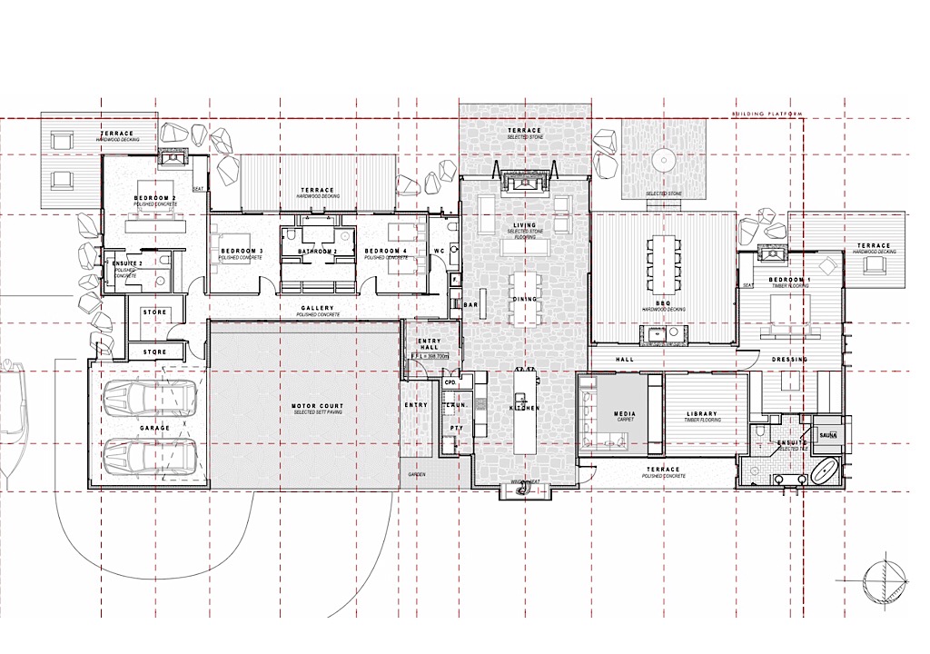
Miller helped refine the programme to allow the owner to realize maximum rental possibility in the short-term, and retirement comfort long-term. Miller developed a plan diagram of an “E” facing the lake and the Western mountain range. The centre leg is developed as the “great room” with Living, Dining and Kitchen. The North leg is a generous Master Suite, with a Master Bath with sauna and shower with views of Mount Alfred. The third leg anchors the southern end of the plan with a second Master Suite, and two additional bedrooms.
As part of a pre-approved development, certain design guidelines govern the property. While a pitched roof is in the guidelines, flat roofs were preferred for this design. MAP, the local, Christchurch-based architects, have successfully negotiated the approval of this exception.
Deep roof overhangs provide shade against high sun, and are accentuated by clerestories that allow the roof planes to “float” and visually extend from indoors to out. This is further accentuated in the great room by a ceiling of exposed timber beams spanning across the width, and extending outdoors.
Designs have been substantially completed and documented, and contract pricing being negotiated. Miller expects to support the project as it moves into Construction on-site early in 2019.
| Type | Residential |
| Build | New Construction |
| Owner | Private Owner |
| Operator | NA |
| Architect | MAP - Christchurch |
| Interior Designer | MAP - Christchurch |
| Project cost | NA |
| Size | 400 SqM |
| Opened | Est. 2021 |
NA
Programming, Design Brief, Design Reviews
Design Brief to combine low-slung Neutra volumes with NZ rustic
Programmed with 2 MBR to allow occasional holiday rental
Single-story, “S-shape” plan allows maximum connection to outdoors c
Views from all spaces carefully exploit scenery to West and North